182 nm földszinti nagy légterű helyiség kiadó XIII. Röppentyű utcában mozgás studionak, oktatésra, irodának

Képek
Alaprajzok
Térkép
Utcakép
Utcakép megnyítása
1013 Budapest, Röppentyű utca

Iroda bérleti díj ( hó + Áfa):

6  -  6.5 €

Kiadó iroda:

182 m2

Minimum kiadó iroda: 100 m2

Területi adatok
Irodaház kategóriája: Lakás irodák
Kiadó iroda: 182 m2
Pénzügyi adatok
Iroda bérleti díj : 6  -  6.5 €/m2/hó + Áfa
Min. bérleti idő: 5 hó
Kaució/óvadék: 2 hó
Kiválóan alkalmas irodának, kereskedelmi szolgáltatásra, gyógyászati központnak, oktatási központnak, bemutató termeknek, csendes mozgás stúdiónak , összesen 178nm földszinti sz egy nagy légterű helység :
Kiadó irodák XIII. kerület Röppentyű utcában B kategóriás, rendezett irodaházban.
Az irodaház a Váci út közelében, a Forgách utca és a Röppentyű utca sarkán helyezkedik el, 3-as metró Forgách utcai megállóhelyétől 5 percre.
Az irodák világosak, modern kialakításúak, ideálisak a produktív munkavégzéshez egy csendes környezetben. Az épület 2 540 m² bruttó alapterületű. A hagyományos falazatú irodák részben klimatizáltak, igény szerint válaszfalazhatóak. Szintenként vizesblokkok és konyhák kerültek kialakításra.

Jelenleg kiadó területeink:
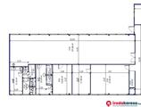
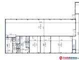
* földszint: 182 m2 – open office 121nm, 1 kis iroda, 2 mosdó és konyha + tárgyaló.
Világos, csendes belső udvarra néző, újonnan kialakított.
Bérleti díj + rezsi össz + áfa + elektromos áram saját fogyasztás alapján.

* földszint.: 100 nm-es utcára néző, 5 szobás saját nemenkénti mosdóval és teakonyhával. teherlifttel is megközelíthető.

-4.emelet teljes szintje 159 nm
Jelenlegi kialakítás szerint 11 iroda helyiségből, nemenkénti mosdókból és konyhából áll.
Igény szerint a szobák száma, méret változtatható.
Teher-, és személylifttel is megköz irodaház alagsorában teher lifttel megközelíthető raktárak bérelhetők: , 137nm.

Bérleti díj: 6.5 EUR/ m²/hó + Áfa
Üzemeltetési költség: 4.8 EUR/ m²/hó + Áfa

Az üzemeltetési költség tartalmaz minden, a bérlemény és az épület fenntartásával és minőségi üzemeltetésével kapcsolatos költséget.
Nem tartalmazza viszont, a bérelt terület elektromos áram és fűtés fogyasztásának díját, a bérelt terület takarítási költségeit, valamint a telekommunikációs költségeket.

Bérelhető belső udvari parkoló: 60€ /hó/gk
2 havi kaució ellenében költözhető.
További információ - O6 3O33OOIOI
Az adatok tájékoztató jellegűek, ajánlatnak nem minősül.

Gyors ajánlatkérés

Kérj egy gombnyomással ajánlatot a kiválasztott irodákról! Az irodák hozzáadásához kattints ikonra!

Kiválasztott irodák:
Nincs kiválasztott iroda
(m2) (m2)

Irodaház szűrő

Bérleti díj (€/m2/hó)

-

Iroda terület (m2)

-

Munkaállomás ára (db)

-

Munkaállomások száma (db)

Hasonló irodák